Description de l'offre
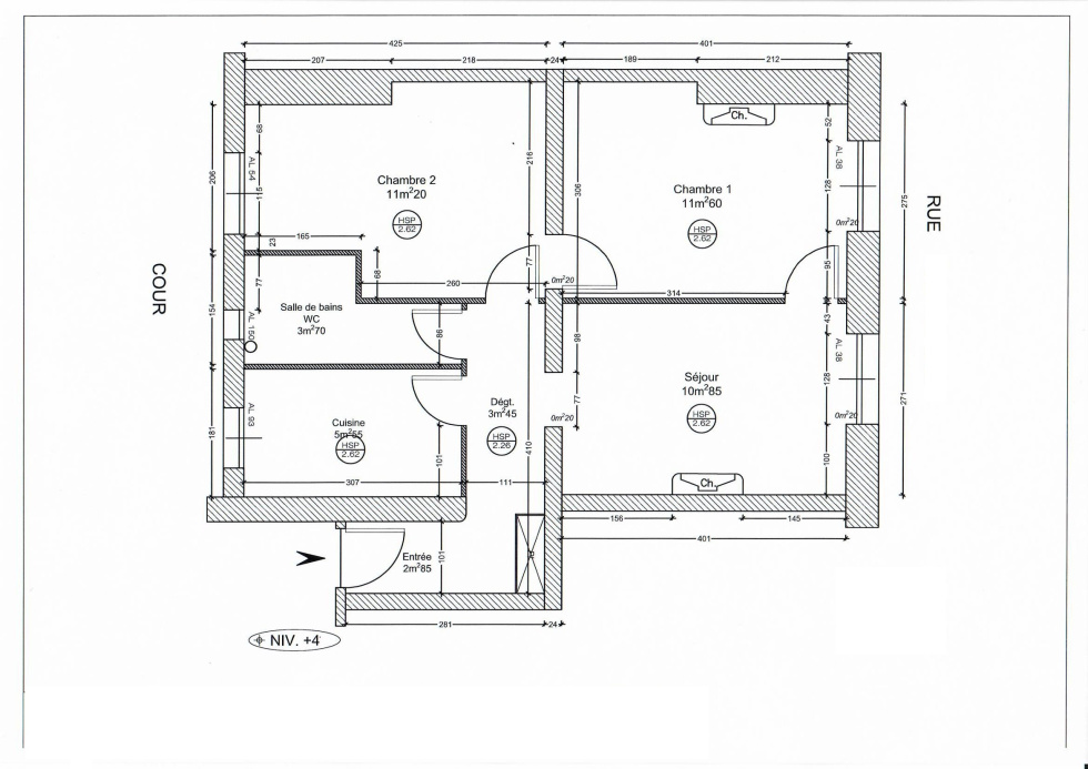
Appartement de 2/3 pièces de 49,20m² loi Carrez (50,20 m² habitables) à proximité immédiate de la Place Jules Joffrin dans une rue calme dans le 18ème arrondissement vivant et agréable. L’appartement se trouve au 4ème étage d’un immeuble ancien en pierre de taille de bonne facture avec ascenseur. Il se compose d’une entrée un salon et deux chambres ou double réception (en abattant la cloison) et une chambre, une cuisine séparée, une salle de bains avec wc et placards. L’ensemble est à rénover à l’exception de l’intégralité des fenêtres qui ont été remplacées dernièrement. Il y a du parquet dans toutes pièces ainsi que deux cheminées et des moulures au plafond. Cela lui confère un charme de l’ancien. Cet appartement une fois remis au goût du jour sera parfait pour un couple ou pour un pied à terre bien situé dans Paris. Très faibles charges : 140 euros/mois. Chauffage et eau chaude individuel au gaz. En annexe : 1 cave
